آخرین محصولات ویژه

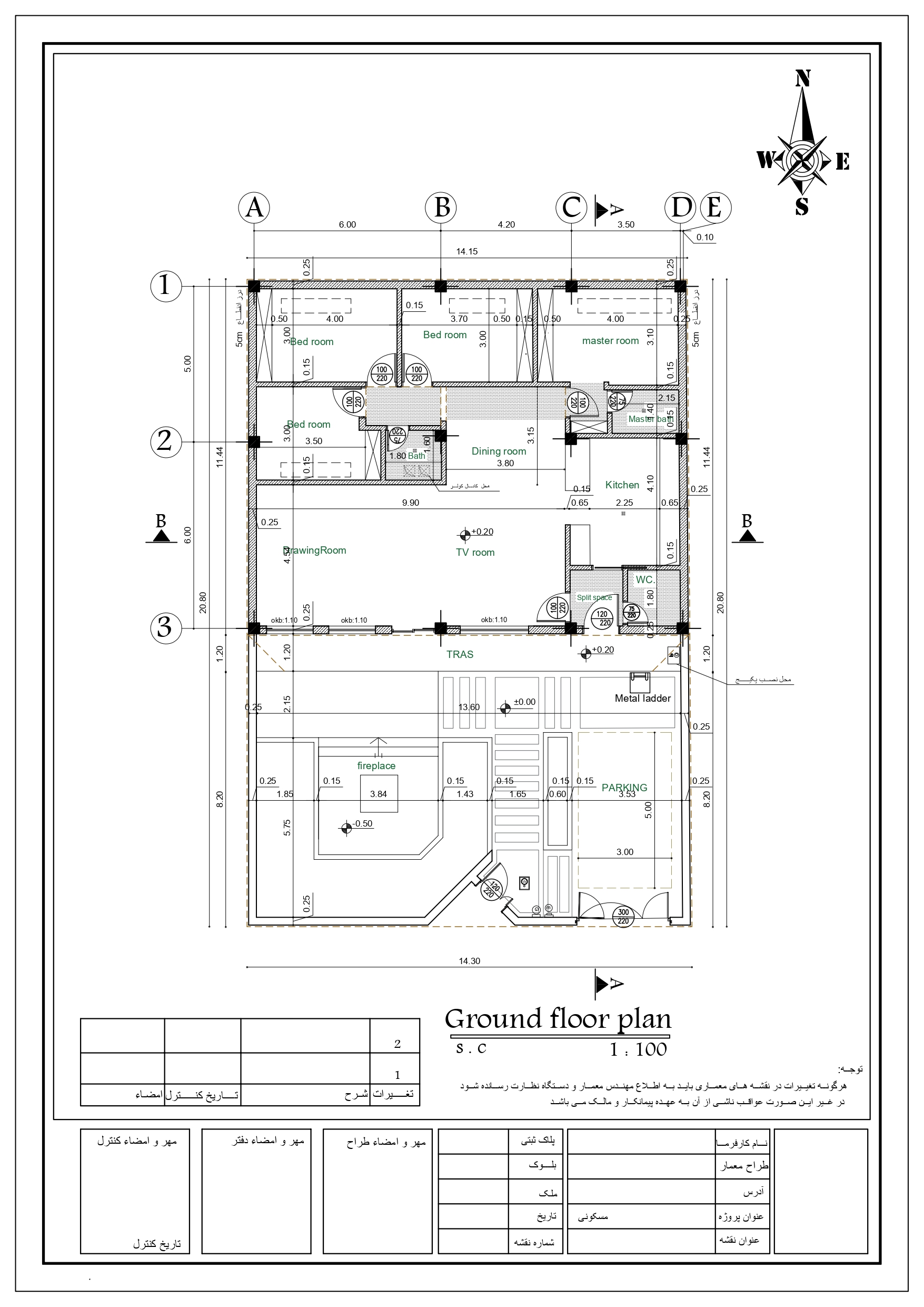
پلان منزل مسکونی 1 طبقه

دسته بندي : عمران و معماری

پلان (Plan) مجموعه‌ای از طراحی یا دیاگرام‌های دو بعدی مورد استفاده برای توصیف یک محل یا شی یا برای برقراری ارتباط ساختمان‌سازی یا دستور العمل‌های ساخت است. معمولاً پلان‌ها روی کاغذ کشیده می‌شوند یا روی کاغذ چاپ می‌شوند اما آن‌ها می‌توانند به صورت یک فایل دیجیتالی نیز حضور داشته باشند. پلان‌ها معمولاً برای اهداف تکنیکالی مانند معماری، مهندسی یا نقشه کشی استفاده می‌شوند.

مشخصات پلان:

  • نوع کاربری: مسکونی
  • تعداد طبقات: 1

پلان‌ها می‌توانند برای ارائه یا جهت گیری اهداف نیز مورد استفاده قرار گیرند. هدف نهایی از پلان، یا به تصویر کشیدن یک مکان یا یک شی موجود است یا برای انتقال اطلاعات کافی یک ذهن خلاق به یک سازنده یا تولیدکننده برای تحقق بخشیدن طرح مورد نظر می‌باشد.

نقشه کامل معماری با فرمت اتوکد (DWG) شامل موارد ذیل می باشد:

  1. پلان طبقه هم کف
  2. پلان مبلمان
  3. پلان بام
  4. پلان شیب بندی بام
  5. سایت پلان
  6. برش A-A .B-B
  7. نمای جنوبی
  8. دیتیل های اجرایی
  9. پلان قابل اجرا می باشد و به صورت البوم جمع شده است
  10. این پلان براساس زمین واقعی طراحی شده است

دسته بندی: عمران و معماری

تعداد مشاهده: 11446 مشاهده

کد فایل:16629

انتشار در:۱۴۰۱/۲/۶

حجم فایل ها:14.3 مگابایت

تعداد صفحات: نامشخص

زبان: فارسی

فرمت: نامشخص

فهرست: نامشخص

منابع و مآخذ: نامشخص

جدول و نمودار: نامشخص

عکس و تصویر: دارد

محتوای فایل: CAD/DWG، PDF، JPG


اشتراک گذاری:
 قیمت: 75,000 60,000 تومان
پس از پرداخت، لینک دانلود فایل برای شما نشان داده می شود.   پرداخت و دریافت فایل
دانلود پیش نمایش حجم: 903.5 کیلوبایت

محصولات مرتبط